

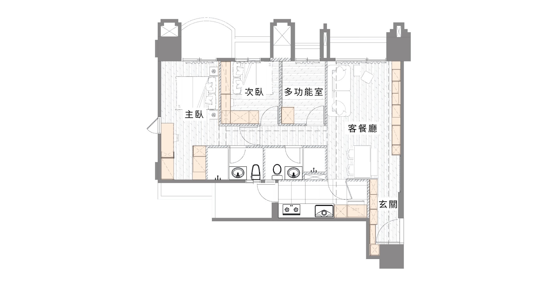
設計亮點
·玄關|畸零地隱藏式收納櫃、圓弧平台細節
·客廳|艾尼瑪藝術漆、電視牆線路隱藏
·主臥|藝術漆床頭牆、預留變動彈性的更衣間
空間序章
本案以洗白橡木與白榆木,鋪就明亮且清爽的北歐輪廓。捨棄冗餘的裝飾,將日常隱入簡約之中,讓淺木色與晨光共同描繪溫馨的居家風景。

玄關|
玄關處,設計師巧妙利用穿鞋椅旁深達 50 公分的柱邊畸零地,規劃了上下分層的隱藏收納櫃:
上方採用側開門片以便拿取物品,下方則透過下掀式設計,最大化利用每一吋空間。
為了消弭高櫃帶來的壓迫感,鞋櫃底部以懸空設計呈現輕盈視覺;穿鞋椅背牆則以細緻的格柵妝點,在簡約平面中疊加出豐富的層次感。
—
玄關另一側規畫了滑軌鏡門,將電箱隱於鏡面之後。施作上透過細膩地側面包邊修飾,避免內部的變電箱與滑軌從側面縫隙被窺見,讓空間線條更加純粹。

客廳|
電視主牆以艾尼瑪藝術漆刷飾,藉由漆料的層疊,交織出深淺錯落的肌理層次。
視線延伸至側邊櫃體,木質層板以白色鐵件支撐,異材質的結合不僅增添了立面的豐富度,鐵架的運用也讓層板更加穩固。
—
因屋主不喜線路外顯,所以設計師在客變階段即於牆內預留連通管,從源頭解決電線外露的問題,並免除後期裝修需另做木作電視牆來遮蔽管線的工序。
此外,設計師還在電視櫃融入集線盒設計,將插座、電線悉數隱藏,讓客廳更顯大方俐落。
餐廳|
餐廳延續了簡約大方的北歐風調性,以簡潔的線條與大面積留白,織就靜謐的用餐氛圍。
—
餐敘區域旁,一面質地溫潤的格柵牆優雅地銜接了玄關與客廳,牆面中段特別嵌入一道淺平台,其末端細膩的圓弧處理,與上方天花板的弧線相互呼應,串聯出一致的柔和律動。
主臥|
床頭牆選用和電視主牆一致的艾尼瑪藝術漆,在屋外陽光的映照下,呈現如雲霧舒展般的低調美感。
溫潤的木質床頭背板,平衡了漆料的冷冽感,頂端融入屋主喜歡的線性燈條,透過柔和的間接光源,營造出令人放鬆舒適的睡眠環境。
—
開放式更衣區延續了清新簡約的北歐風格,並將屋主偏好的線燈與隔柵元素揉合其中。掛衣區下方保留適度的空白,除了能容納現有的活動抽屜配置,也保留了日後置放大型物件的可能,為未來預留調整的彈性。
次臥|
次臥藉由一體成形的設計,整合衣櫃、化妝桌與床頭櫃,同時善用垂直立面設置床頭吊櫃,使精巧的臥房也能擁有充裕的置物容量。
窩百態 #免費設計師諮詢 你絕對不能錯過




















































.jpg)
.jpg)


